KB-66

”Ma” Williams, manufactured and modular homes

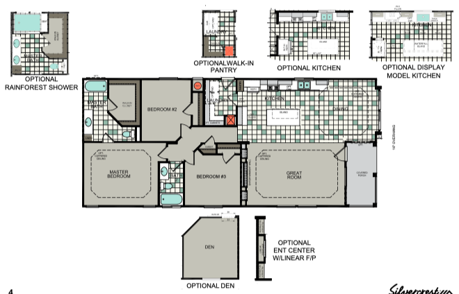
Floor Plan


Floor Plan Specifications

  • 2×6 Transverse Floor Joists-16″ on Center per Plan, with 3/4″ OSB Floor Decking
  • 9′ Sidewall Height with Flat Ceilings and Stacked Style Upper Windows in Main Living Area
  • Insulation: Ceiling R-22, 2X4 Exterior Wall Studs with R-13 & Floor R-11
  • Dual-Glazed Vinyl low-E Windows
  • 100 Amp Electrical Service
  • 20lb Roof load
  • 30 gallon Gas Water Heater and Down Flow Gas Furnace
  • Cement Fiber Siding
  • Class “A” Architectural Roof Shingles
  • 6-Panel 36″ Vinyl-Covered Insulated Entry Door
  • 6-Panel 32″ Vinyl-Covered Insulated Rear Entry Door.
  • 16″ Front Overhang. Side Eaves per Plan
  • Dropside Hardboard Lap Accent on Front End Walls
  • 8″ Hardboard Fascia with 4″ Hardboard Corner & Window Trim
  • 1/2″ Drywall on Walls with Square Corners with Orange Peel Textured Finish on Walls and Ceilings
  • Dramatic Sculptured Passage Door Casings and 3 1/2″ Floor Moldings Throughout
  • Carpeting in Living Areas with 1/2″ Rebond Pad and Vinyl Flooring in Kitchen, Baths, Utility, Nook and Dining Areas per Plan
  • 3-Panel Passage and Wardrobe Doors throughout with Satin Nickel Finish Lever handles
  • Hidden Hinges with Soft Close Feature on Cabinet Doors
  • Toe Kick Retisters in Kitchen and Baths
  • Satin Nickel or Bronze Lighting Fixtures with Recessed Can Light Above Kitchen Sink Area
  • Tall Hand Finished Wood Cabinets Throughout with Drawer Over Door Cabinet Design and Solid End Panel Construction
  • 8″ Deep Stainless Steel Self-Rimming Sink with Moen Dual Handle Faucet.
  • Whirlpool White or Black Finished Kitchen Appliances
  • Corian Countertops with 6″ Backsplash
  • 18 Fu Ft Double Door Refrigerator
  • 30″ Gas Freestanding Range
  • 60″ 1-Piece Fiberglass Tub/Shower in Both Master and Guest Bath
  • China Sinks
  • Elongated Water-Saver Commode
  • Satin Nickel or Bronze Lighting Fixtures
  • Vanity Mirror with Beveled Edge Mirrored Medicine Cabinet
  • Towel Bar, Towel Ring & Tissue Holder – Chrome
  • Corian counters with 4″ backsplash

Photos


3D Tour

Floor Plan Description

Model NumberKB-66
Bedrooms3
Bathrooms2
Square Footage1561 SF
Width26'8"
Length61'4"

The Kingsbrook 66 is an award-winning new manufactured home design. This high performance 1561 square foot open concept plan features three-bedroom, two-bathrooms, a large master suite, a laundry room, a porch and a spacious great room, kitchen and dining area. The Kingsbrook 66 has 9’ sidewalls, with stacked windows in the great room, dining room and kitchen resulting in a well-lit, light and airy feeling. Please take a moment to take in the stunning exterior design of this contempo home. Additionally, this home offers several pre-engineered floorplan modifications to the master bath, great room laundry room, bedroom three and kitchen areas. Although the home already features a seven-year Silvershield warranty, hardwood cabinetry, Corian countertops, crown molding, sculpted cased windows and baseboards, etc., you can further customize both the interior and exterior to your liking.

**Floor plan specifications and materials are subject to change without notice or obligation.**


Related models

  • 3 Bedrooms
  • 2 Bathrooms
  • 1516 SF
  • 26'8" X 59'8"
  • 3 Bedrooms
  • 2 Bathrooms
  • 1440 SF
  • 27' X 56'
  • 3 Bedrooms
  • 2 Bathrooms
  • 1679 SF
  • 26'8" X 64'
  • 3 Bedrooms
  • 2 Bathrooms
  • 1546 SF
  • 29'8" X 52'
  • 3 Bedrooms
  • 2 Bathrooms
  • 1571 SF
  • 27' X 55'10"
  • 3 Bedrooms
  • 2 Bathrooms
  • 1742 SF
  • 30'4 X 60'
Verify