BD Special Model

”Ma” Williams, manufactured and modular homes

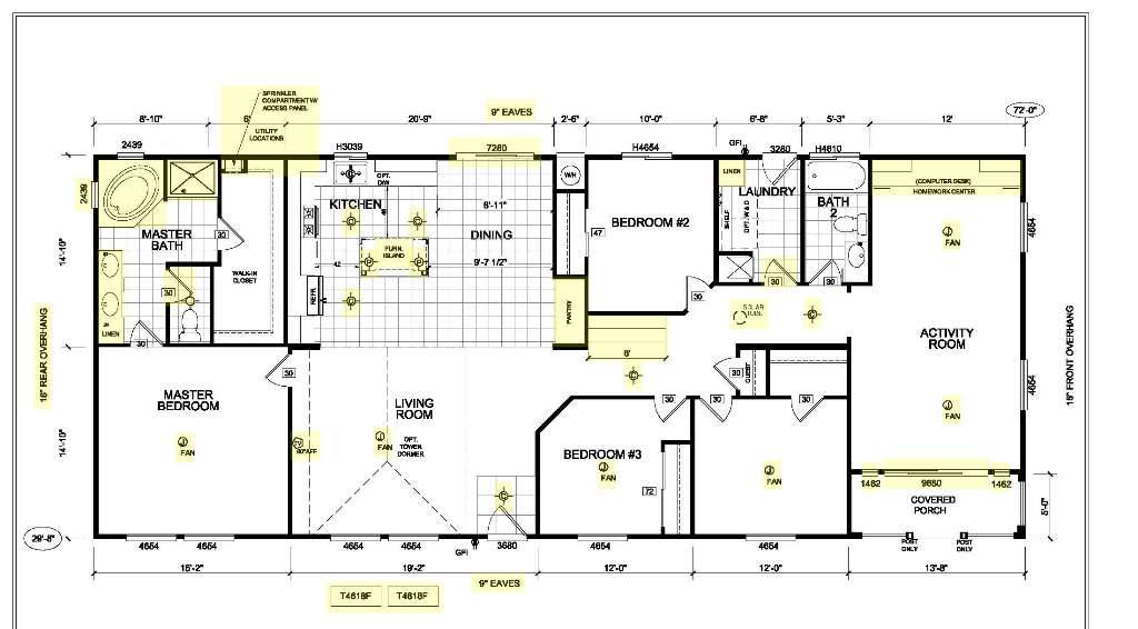
Floor Plan


Floor Plan Specifications

  • 2×6 Transverse Floor Joists-16″ on Center per Plan, with 3/4″ OSB Floor Decking
  • 90″ Sidewall Height with Cathedral Ceilings per Plan
  • Insulation: Ceiling R-22, 2X4 Exterior Wall Studs with R-13 & Floor R-11
  • Dual-Glazed Vinyl low-E Windows
  • 100 Amp Electrical Service
  • 20lb Roof load
  • 30 gallon Gas Water Heater and Down Flow Gas Furnace
  • Cement Fiber Siding
  • Class “A” Architectural Roof Shingles
  • 6-Panel 36″ Vinyl-Covered Insulated Entry Door
  • 6-Panel 32″ Vinyl-Covered Insulated Rear Entry Door
  • 16″ Front Overhang. Side Eaves per Plan
  • Craftsman Style Shutters (per plan)
  • 8″ Hardboard Fascia with 4″ Hardboard Corner & Window Trim
  • 1/2″ Drywall on Walls with Square Corners with Orange Peel Textured Finish on Walls and Ceilings
  • Dramatic Sculptured Passage Door Casings and 3 1/4″ Floor Moldings Throughout
  • Carpeting in Living Areas with 1/2″ Rebond Pad and Vinyl Flooring in Kitchen, Baths, Utility, Nook and Dining Areas per Plan
  • 3-Panel Passage and Wardrobe Doors throughout with Satin Nickel Finish Lever handles
  • Hidden Hinges with Soft Close Feature on Cabinet Doors
  • Toe Kick Resisters in Kitchen and Baths
  • Hand Finished Wood Cabinets Throughout with Solid End Panel Construction
  • 8″ Deep Stainless Steel Self-Rimming Sink with Moen Dual Handle Faucet
  • Whirlpool White Finished Kitchen Appliances
  • Corian Countertops with 4″ Backsplash, 2″ front drop edge
  • 18 Fu Ft Double Door Refrigerator
  • 30″ Gas Freestanding Range
  • 60″ 1-Piece Fiberglass Tub/Shower in Both Master and Guest Bath
  • China Sinks
  • Elongated Water-Saver Commode
  • Satin Nickel Fixtures
  • Vanity Mirror with Beveled Edge Mirrored Medicine Cabinet
  • Towel Bar, Towel Ring & Tissue Holder – Chrome
  • Corian counters with 4″ backsplash

Photos


3D Tour

Floor Plan Description

Model NumberBD Special Model
Bedrooms4
Bathrooms2
Square Footage2136 SF
Width26'8"
Length72'

Related models

  • 4 Bedrooms
  • 2 Bathrooms
  • 2136 SF
  • 29'8" X 72'
  • 4 Bedrooms
  • 2 Bathrooms
  • 1978 SF
  • 29'8" X 66'8"
  • 4 Bedrooms
  • 2 Bathrooms
  • 2152 SF
  • 40'2 X 54/56/54
  • 4 Bedrooms
  • 2 Bathrooms
  • 2080 SF
  • 40 X 56
Verify