B368CT

”Ma” Williams, manufactured and modular homes

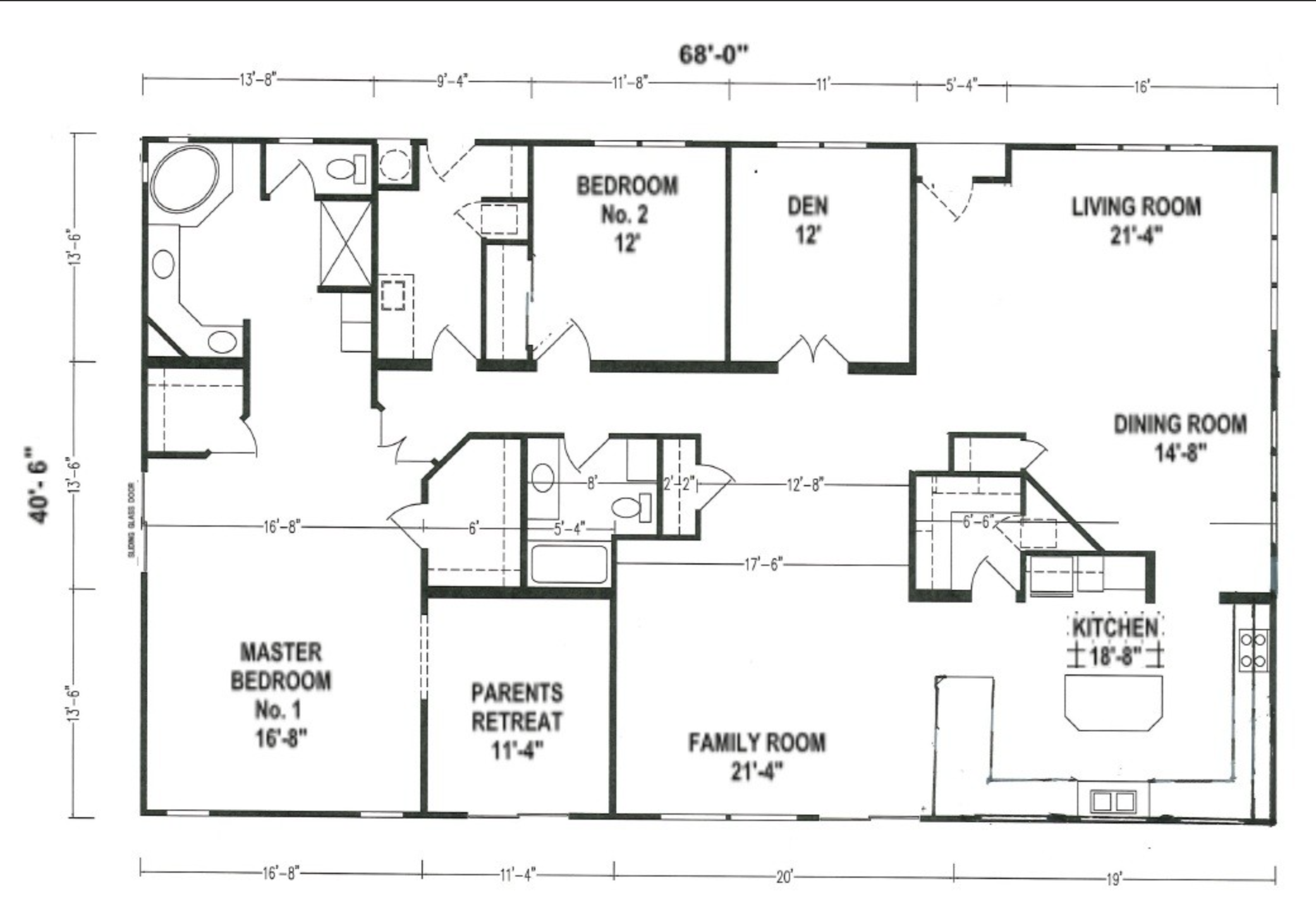
Floor Plan


Floor Plan Specifications

  • Energy Star Certified
  • 100 AMP Exterior Electrical Panel Box
  • Plumbed for Washing Machine & Gas Dryer
  • High Efficiency Gas Furnace
  • Toe-Kick Registers in Kitchen & Baths
  • 40-Gallon Gas Water Heater
  • Metal Shut-Off Valves Throughout
  • 20# Roof Load
  • 3:12 Roof Pitch (per Plan)
  • Vertical Cement Fiber Siding
  • Class “A” Architectural Roof Shingles
  • 36” Craftsman Front Door with Deadbolt
  • 32” 9-Lite Rear Door
  • 12” Front & Rear Overhangs & 6” Side Eaves (per Plan)
  • Upgrade R33-11-22 Insulation
  • Dual-Glazed Vinyl Framed Low-E Windows
  • 2×4 Exterior Sidewalls
  • 9’ Sidewalls with Flat Ceiling Throughout
  • 2-Panel Interior Doors with Mortised Nickel Hinges
  • Oversized 42” Wide Hallway
  • Upgrade 5 ¼” Residential Base Board Molding
  • Shaw No-Wax Vinyl Floor Covering in Kitchen, Dining Room, Baths & Utility
  • Shaw Stain Safety Treated Carpet & Rebond Pad
  • 2” Faux Wood Blinds with Faux Wood Valance
  • Hardwood Component Cabinets with Hidden Hinges, White Lining and Adjustable Overhead Shelves
  • 42” Tall Hardwood Overhead Cabinets
  • Laminate Countertop with Crescent Edge
  • 6” Subway Tile Backsplash
  • Stainless Steel Sink
  • Large Gourmet Kitchen Island (per Plan)
  • Whirlpool Stainless Steel Appliances: 18.1 Cu Ft Frost-Free Refrigerator, 30” Deluxe Gas Range with Electronic Ignition, Window, Clock & Timer & Range Hood Vent
  • Adjustable Overhead & Base Cabinet Shelves
  • Drawer-Over-Door Cabinet Construction
  • 60” Fiberglass Walk-In Shower with Enclosure Master Bath
  • 60” 1-Piece Fiberglass Tub/Shower with Single Lever Diverter in Guest Bath
  • Beveled Medicine Cabinet Both Baths
  • Vanity Mirrors with Beveled Edge
  • Laminate Crescent Edge
  • 6” Subway Tile Backsplash
  • Ventilated Window (per Plan)
  • 36” High Countertop in Both Baths

Floor Plan Description

Model NumberB368CT
Bedrooms4
Bathrooms2
Square Footage2747 SF
Width42
Length68/71/68

B368CT is 2747 square feet of home laid out in an exquisite design featuring two-bathrooms and two-bedrooms a den and a master bedroom retreat. This house offers both a large living and family room. The well-lit family room opens to a large curvaceous kitchen embedded with windows adding to the brightness and fluidity of the design. The master suite offers dual walk-in closets. The laundry room is spacious enough to fit a laundry tub, broom closet and a separate freezer. Additionally, this home offers a pre-engineered floorplan modification to convert the design into a three-bedroom home. The Custom Villa series has standard hardwood cabinetry, most interior doors are 36”, radius drywall corners, side eaves and overhangs, 2x6 exterior window trim and exterior shutter treatments to the windows on the front door side and hitch end.

**Floor plan specifications and materials are subject to change without notice or obligation.**


Related models

  • 4 Bedrooms
  • 2 Bathrooms
  • 2747 SF
  • 42 X 68/71/68
Verify