M105-J

”Ma” Williams, manufactured and modular homes

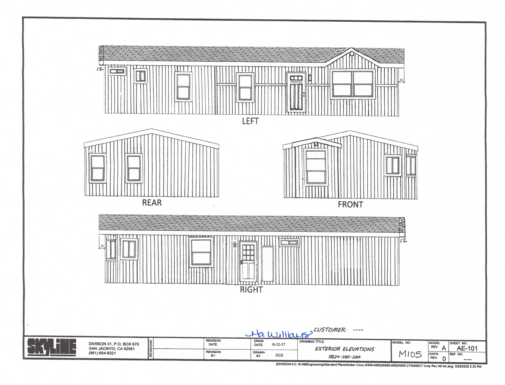
Floor Plan


Floor Plan Specifications

  • 8’ Sidewalls
  • 2×6 Floor Joists
  • 2×8 Floor Joists (Single Section)
  • R-33 Ceiling Insulation
  • R-19 Wall Insulation
  • R-22 Floor Insulation
  • 20lb Roof Load
  • 3:12 Roof Pitch (Per Plan)
  • Tongue and Groove OSB Floor Decking
  • Dual-Glazed Vinyl Framed Low-E Windows
  • Steel Outriggers on Exterior Walls
  • PEX Water Lines
  • Shutoff Valves at all Sinks and Toilets
  • WUI Compliant Roof Vents
  • Vertical Cement Fiber Siding
  • Class “A” Architectural Roof Shingles
  • Upgrade Exterior
  • Exterior Light at Front and Rear Doors
  • 36” Craftsman Front Door with Deadbolt
  • 32” Cottage Rear Door with Deadbolt
  • 12” Front Overhang
  • 12” Rear Overhang
  • 6” Side Eaves (Per Plan)
  • Semi-Glass Exterior Paint
  • 8’ Flat Ceiling
  • ½” Drywall Throughout
  • Sculptured Floor Molding and Door Casing
  • Hand-Finished Knock-Down Wall Texture
  • Low Sheen Interior Paint
  • 2-Panel Bypass Closet Doors (Per Plan)
  • 2-Panel Interior Doors with 3-Mortised Nickel Hinges
  • Lever Door Handles with Satin Nickel Finish
  • Shaw Stain Safety Treated Carpet
  • 3/8” Rebond Capet Pad
  • Vinyl Flooring in Kitchen, Dining Room, Baths and Utility (Per Plan)
  • 2” Faux Wood Blinds With Faux Wood Valance
  • Double Wood Shelf and Pole in Primar Bedroom Wardrobe
  • Single Wood Shelf and Pole in Guest Bedroom Wardrobe
  • Wood Shelving in Hall Closet and Linen Closets
  • Wood shelf and Pole Above Washer/Dryer area
  • Cased Windows
  • Hardwood Shaker Style Cabinets
  • 42” Tall Overhead Cabinets
  • Crown Molding on all Overhead Cabinets
  • ¾” Adjustable Base and Overhead Cabinets
  • Large Gourmet Kitchen Island (Per Plan)
  • Full Extension Ball Bearing Drawer Guides
  • Whirlpool Brand Name Stainless Steel Appliances
  • 1 Cu. Ft. Frost-Free Refrigerator
  • 30” Deluxe Gas Range with Electronic Ignition, Window, Clock and Timer
  • Microwave Range Hood
  • Dining Room Chandelier
  • Deep Single Cell Stainless Steel Sink
  • High Arch Single-Lever Faucet with Pull-Out Sprayer
  • Bank of Drawers
  • Laminate Countertop
  • Laminate Crescent Edge
  • Full Heigh Tile and Design Backsplash
  • 60” European Design Walk-In Shower
  • Upgrade Shower Door
  • Porcelain Sink with Overflow And Pop-Up Drain
  • Single-Lever Shower Diverter
  • Dual Control Faucets
  • Elongated Water-Saver Commode
  • Vanity Light Fixture
  • Vanity Mirror with Beveled Edge
  • Ceiling Exhaust Fan
  • 36” High Countertop
  • Laminate Countertop
  • Laminate Crescent Edge
  • 4” Laminate Backsplash
  • Full Extension Ball Bearing Drawer Guides
  • Linen Closet
  • Drawer Bank
  • Beveled Medicine Cabinet
  • Ventilation Windows
  • Towel Bar and Tissue Holder
  • Privacy Lock
  • 60” One-Piece Fiberglass Tub/Shower
  • Poercelain Sink with Overflow and Pop-Up Drain
  • Single-Lever Tub/Shower Diverter
  • Dual Control Faucets
  • Ventilation Window
  • Towel Bar and Tissue Holder

Photos


3D Tour

Floor Plan Description

Model NumberM105-J
Bedrooms3
Bathrooms2
Square Footage1167 SF
Width23'4"
Length50'

Related models

  • 3 Bedrooms
  • 2 Bathrooms
  • 1306 SF
  • 26'8" X 52'
  • 3 Bedrooms
  • 2 Bathrooms
  • 1237 SF
  • 23'4" X 56'
  • 3 Bedrooms
  • 2 Bathrooms
  • 1151 SF
  • 23'4" X 52'
  • 3 Bedrooms
  • 2 Bathrooms
  • 1318 SF
  • 26'8" X 52'
  • 3 Bedrooms
  • 2 Bathrooms
  • 1360 SF
  • 26'8" X 54'
  • 3 Bedrooms
  • 2 Bathrooms
  • 1135 SF
  • 23'4" X 49'4"
Verify