BD-37

”Ma” Williams, manufactured and modular homes

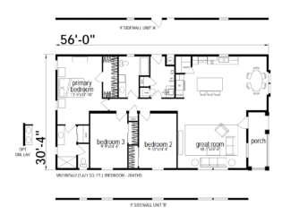
Floor Plan


Floor Plan Specifications

• California CARD II Compliant Home

• Includes Silvercrest’s “Silvershield” Seven-Year Warranty

       o NOW ALSO INCLUDES STRUCTURAL COVERAGE! (Deductibles apply, claims processed by Cornerstone United Insurance Company)

• 20 lb. Roof Load

• Insulation

o Floor R-11

o Walls R-13

o Ceilings R-22

• All Structural Lumber used in Kiln-Dried for Higher Quality

• 2”x 6” Transverse Floor Joists – 16” on center

• 2” x 4” Exterior Wall Studding- 16” on center

• White vinyl framed, dual glazed windows with low-e coating for energy savings- windows are Energy Star rated and approved

• PEX Water Lines

• Water Shut-off valves at all sinks and toilets

• 5/8” fire rated drywall ceilings

• 1/2” drywall on all interior walls

• ¾” OSB Floor decking

• 96” Sidewall height- per plan

• 100 amp electrical service

• 30-gallon gas water heater

• Gas down-flow furnace with manual thermostat

• Steel outriggers on all exterior walls for support

• Semi-glass exterior paint with three colors design featuring high-quality PPG paint • Class “A” fire-rated architectural shingles with Manufacturers 30-Year Limited Warranty • High wind nailing pattern on all shingles (6 nails per shingles vs. 4 staples from other manufacturers) • (2) Exterior GFI protected patio outlets (locations vary per plan) • 16” Front overhang • Sidewalls eaves per plan (construction modifications can affect standard eave design) • Craftsman-style shutters (Per plan) • Six-panel 36” fiberglass insulated entry door with deadbolt security lock • Six-panel 32” fiberglass insulated rear entry door with deadbolt security lock • All exterior doors with deadbolts feature a metal plate on door jam for added security • Name brand fiber-cement exterior siding materials with Manufacturers 25-Year Limited Warranty • 8” hardboard fascia and 4” hardboard corner and window trim • Hose bibb

• 8’ Flat interior ceilings throughout • ½” drywall on walls with square corners • Orange peel-style textured finish on walls and ceilings • White walls standard- choice of six additional optional interior wall colors • Two-panel passage and wardrobe doors throughout • Dramatic sculptured passage door moldings • 3 ¼” sculptured floor moldings throughout (optional 5 ¼” also available!) • (3) mortised hinges on passage doors • Lever-style passage door locksets-satin nickel finish • Hand-finished wood cabinets throughout with solid end panel construction • Soft-close hidden hinges on cabinet doors • Side-mounted metal drawer guides • Rocker-style light switches with matching style wall outlets • All copper wiring throughout • Metal water shutoff valves at all fixtures • 2” white faux wood blinds with matching wood valance • Plumb/wire for washer and dryer • USB receptable in kitchen area for easy recharging of electronic devices • White wood window casings throughout (except bath areas) • 50 AMP circuit for AC • Electronic door chime • Painted wood shaker style cabinet doors • Can light in bedrooms

• Whirpool white finished kitchen appliances o 30” gas freestanding range o 18 cubic foot double door refrigerator • Moen dual-handle faucet with Manufacturers Limited Lifetime Warranty on finish and parts • Adjustable shelves in overhead cabinets finished with white lined cabinets interiors • 8” deep stainless steel self-rimming sink • Crown molding on all overhead cabinets • Toe-kick heat register in base cabinets (per plan) • Corian finish countertops with 4” backsplash, 2” front drop edge • Painted wood shaker style cabinet doors • Microwave range hood • Stainless steel appliances

• Designer-selected light fixture above sinks • 60” one-piece fiberglass tub/shower • Corian counters with 4” backsplash • Beveled-edge mirrored medicine cabinet • China self-rimming sinks • Satin nickel lighting fixtures • Towel bar and paper holder-satin nickel finish • Elongated low-flow water-saving toilets • Moen dual-handle faucet with Manufacturers Limited Lifetime Warranty on finish and parts • Moen tub/shower faucet featuring pressure balance valves to help prevent temperature variations, reducing the chance of scalding • Ceiling vented exhaust fan • “Easy Care” Congoleum DiamondFlor vinyl floor covering • 60” shower in master bath • Framed mirrors • Medicine cabinets • Can light above tubs and showers

Photos


Floor Plan Description

Model NumberBD-37
Bedrooms3
Bathrooms2
Square Footage1661 SF
Width29'8"
Length56'

Related models

  • 3 Bedrooms
  • 2 Bathrooms
  • 1516 SF
  • 26'8" X 59'8"
  • 3 Bedrooms
  • 2 Bathrooms
  • 1679 SF
  • 26'8" X 64'
  • 3 Bedrooms
  • 2 Bathrooms
  • 1546 SF
  • 29'8" X 52'
  • 3 Bedrooms
  • 2 Bathrooms
  • 1571 SF
  • 27' X 55'10"
  • 3 Bedrooms
  • 2 Bathrooms
  • 1742 SF
  • 30'4 X 60'
  • 3 Bedrooms
  • 2 Bathrooms
  • 1520 SF
  • 26'8" X 60'
Verify