DR09-5624

”Ma” Williams, manufactured and modular homes

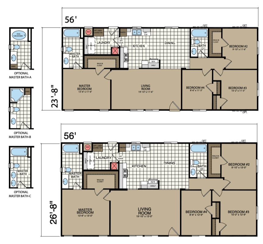
Floor Plan

  • Details

56 x 24

4 bed 2 bath

1344 sq. ft.

Photos


Standard Features

**Floor plan specifications and materials are subject to change without notice or obligation.**

Construction & Specification

  • California CARB II compliant home
  • 20 lb roof load
    • Floor R-11 insulation
    • Walls R-13 insulation
    • Ceilings R-22 insulation
  • All structural lumber used is kiln-dried for higher quality
  • 2”x6” transverse floor joists - 16” on center
  • 2”x4” exterior wall studding - 16” on center
  • White vinyl dual-glazed windows
  • PEX water lines
  • Water shutoff valves at all sinks and toilets
  • Drywall ceilings
  • Drywall on all interior walls
  • 5/8” OSB decking
  • 90” sidewall height - per plan
  • 100 amp electrical service
  • 30 gallon gas water heater
  • Gas downflow furnace with manual thermostat
  • Steel outriggers on all exterior walls for support - no perimeter blocking required on standard plans without modifications

Exterior

  • Semi-gloss exterior paint featuring high quality PPG®
  • Fiberglass shingles
  • (2) exterior GFI protected patio outlets (locations vary per plan)
  • 12” front overhang
  • 36” insulated 6-panel entry door with deadbolt security lock
  • Cempanel® brand cement fiber exterior siding materials with manufacturers 25 year limited warranty by Hardie®
  • 8” hardboard fascia and 4” hardboard corner and window trim
  • Side eaves & rear overhang are optional

Interior Features

  • Vaulted interior ceilings throughout
  • Orange peel style textured finish on walls and ceilings
  • PPG® interior paint - white walls standard - choice of additional optional interior wall colors
  • Passage and wardrobe doors throughout - flat panel
  • Mortised hinges on passage doors
  • Passage door locksets - tulip style
  • Hidden hinges on cabinet doors
  • Side-mounted metal drawer guides
  • Water shutoff valves at all fixtures
  • Rocker style light switches with matching wall outlets
  • All copper wiring throughout

Floor Coverings

  • Carpet in living areas & bedrooms
  • Rebond carpet pad
  • Easy care Congoleum® DiamondFlor™ vinyl flooring in Kitchen, Baths, Utility, Nook and Dining areas (per plan)

Kitchen

  • Whirlpool® white kitchen appliances
  • 30” gas freestanding range
  • 18 cubic foot double door refrigerator
  • Dual handle faucet
  • Shelf in overhead cabinets with white lined finished cabinet interiors
  • Laminate countertops with backsplash - 2” front drop edge
  • MDF cabinets throughout with solid end panel construction
  • 8” deep stainless steel self-rimming sink

Master Bath

  • 60” tub / shower
  • Laminate countertops with backsplash
  • China self-rimming sink
  • Towel bar and paper holder
  • Low-flow water-saving toilets
  • Dual handle faucet
  • Ceiling vented exhaust fan
  • Easy care Congoleum® DiamondFlor™ vinyl flooring

Bath Two

  • 60” tub / shower
  • Easy care Congoleum® DiamondFlor™ vinyl flooring
  • China self-rimming sink
  • Laminate countertops with backsplash
  • Low-flow water-saving toilets
  • Towel bar and paper holder
  • Ceiling vented exhaust fan

Lighting

  • Switched wall outlet for lamp lighting in Living Room and all Bedrooms (wall outlet designated by being installed upside down for easy identification)
  • Round ceiling light in Kitchen, Hall, Utility and Walk-in Wardrobes

Optional Features

  • 2”x6” exterior walls with R-19 fiberglass insulation for additional energy savings
  • Energy-saving tankless gas water heater by Noritz®
  • Metlund® D’MAND® on demand water circulation system - saves water and energy
  • Reflective roof sheathing for cooler roof attic area - saves money on heating and cooling costs
  • Tubular skylights that light home interiors without lighting during daylight hours - saves energy
  • LED canlights for energy savings
  • Prep raceways for wall mount flat screen television
  • Prep raceways for phones
  • WUI compliant structural package for homes located in California designated fire zones
  • Fire sprinkler system
  • SilverShield 7 year warranty now includes structural coverage (deductibles apply, claims processed by Cornerstone United Insurance Co.)

Verify